Vrijburg 11 Amsterdam
- Koopprijs
- € 449.000,- k.k.
- Status
- Beschikbaar
- Bouwvorm
- Bestaande bouw
- Bouwjaar
- 1986
- Woonoppervlakte
- 95 m2
Lees hier een
Beschrijving
ERFPACHT IS EEUWIGDUREND AFGEKOCHT!!
Ben je op zoek naar een ruim en prachtig gelegen appartement in Amsterdam Nieuw-West? Wil je comfortabel wonen met meerdere slaapkamers? Is een lichte woonkamer, een buitenruimte en een moderne inbouwkeuken belangrijk voor je? Dan is Vrijburg 11 in Amsterdam precies wat je zoekt!
Echte kenmerken van Vrijburg 11:
– Energielabel A;
– Royaal appartement met zonnige buitenruimte;
– Instap klaar 4-kamer appartement;
– Winkels, horeca, openbaar vervoer en recreatie op loopafstand;
– Gelegen in het groene en rustige Amsterdam Nieuw-West;
Is dit appartement iets voor jou?
In combinatie met de foto’s krijg je een goed beeld van de ruimte en mogelijkheden!
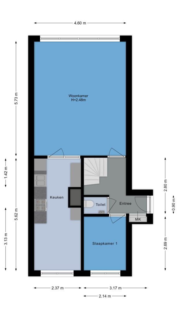
Dit ruime appartement aan de Vrijburg 11 biedt een royale woonkamer, drie slaapkamers, een praktische inpandige berging en een half open keuken met moderne voorzieningen. Het appartement is gelegen op de 1e en 2e verdieping van een goed onderhouden complex. De locatie is ideaal: op loopafstand van tram- en busverbindingen, winkels, recreatiemogelijkheden zoals de Sloterplas en het Sloterpark, en met snelle toegang tot de uitvalswegen A4, A9 en A10. Goed onderhouden appartement voorzien van dubbele beglazing, energielabel “A”, verwarming middels cv-ketel (2017), fraaie laminaatvloer moderne inbouwkeuken en badkamer etc. Kortom, een fraai afgewerkte woning waar je zo in kan!
Indeling:
1e verdieping:
entree van het appartement via de hal met meterkast. Vanuit de hal bereik je een van de slaapkamers, het separate toilet en de ruime woonkamer.
De lichte woonkamer vormt het hart van de woning en biedt voldoende ruimte voor een comfortabele zithoek én een eethoek. Dankzij de grote raampartijen geniet je hier van veel natuurlijk licht.
De halfopen keuken is voorzien van diverse moderne inbouwapparatuur en biedt voldoende werk- en opbergruimte.
2e verdieping:
via de overloop bereik je twee ruime slaapkamers, waarvan één met toegang tot het balkon. Moderne badkamer is verzorgd en uitgerust met een inloopdouche, ligbad, toilet en wastafelmeubel.
De inpandige berging biedt praktische opslagruimte en beschikt over een wasmachineaansluiting en CV-installatie.
Bijzonderheden:
– Bouwjaar ca. 1986;
– Voorzien van HR en HR++glas;
– Mogelijkheid tot 2 parkeervergunningen;
– Erfpacht eeuwigdurend afgekocht;
– Goed onderhouden complex met actieve en financieel gezonde VvE;
– Servicekosten ca. € 189,- per maand (inclusief opstalverzekering en reservering onderhoud);
– Asbest- en ouderdomsclausule zijn van toepassing;
– Oplevering in overleg.
Een rondleiding door dit ruime en comfortabele appartement?
Neem contact met ons op, dan laten wij je dit prachtige appartement aan de Vrijburg 11 graag van binnen én buiten zien!
Kenmerken
Woning Algemeen
- Objecttype
- Appartement
- Huidig gebruik
- Woonruimte
- Huidige bestemming
- Woonruimte
- Bouwrijp
- Nee
- Permanente bewoning
- Ja
- Recreatiewoning
- Nee
- Liggingen
- In woonwijk
- Inhoud
- 329 m3
- Woonoppervlakte
- 95 m2
- Gebruiksoppervlakte overige functies
- 0 m2
- Oppervlakte externe bergruimte
- 6 m2
- Buitenruimtes gebouwgebonden of vrijstaand
- 9 m2
- Bouwjaar
- 1986
- In aanbouw
- Nee
- Parkeer faciliteiten
- Betaald parkeren, Parkeervergunningen
- Aantal kamers
- 4
- Aantal slaapkamers
- 3
- Aantal badkamers
- 1
- Soort
- Maisonnette
- Kenmerk
- Appartement
- Open portiek
- Nee
- Woonlaag
- 2
- Aantal woonlagen
- 2
Overdracht
- Koopprijs
- € 449.000,- k.k.
- Bouwvorm
- Bestaande bouw
- Aanmeldingsreden
- In verkoop genomen
- Aanvaarding
- In overleg
- Status
- Beschikbaar
Woning onderhoud, schuur
- Isolatievormen
- Dubbelglas, HR glas
- Dak type
- Plat dak
- Dak materialen
- Bitumineuze Dakbedekking
- Energieklasse
- A
- Energielabel einddatum
- 3 december 2034
- Waardering
- Goed
- Waardering
- Goed
- Soort
- Inpandig
- Totaal aantal
- 1
- Soorten verwarming
- CV ketel
- CV ketel type
- Intergas
- CV ketel bouwjaar
- 2017
- CV ketel brandstof
- Gas
- CV ketel eigendom
- Eigendom
- CV ketel combiketel
- Ja
- Soorten warm water
- CV ketel
- Bouwjaar
- 1986
- In aanbouw
- Nee
Woning Tuin, garage
- Tuintypen
- Geen tuin
- Achterom
- Nee
- Soorten
- Geen garage
- Parkeer faciliteiten
- Betaald parkeren, Parkeervergunningen
Video
Bekijk de
Ligging
Deze vind je vast leuk
Vergelijkaar aanbod
Dichtbij
In de buurt
-
BeschikbaarAmsterdam - Jan van Duivenvoordestraat 37€ 429.000,- k.k.Bekijk woning
-
VerkochtAmsterdam - Dinarpromenade 12€ 385.000,- k.k.Bekijk woning
-
Onder bodAmsterdam - Pieter Postsingel 203€ 639.000,- k.k.Bekijk woning
-
VerkochtAmsterdam - Woestduinstraat 117-1€ 475.000,- k.k.Bekijk woning








