Nijenburg 25 Amsterdam
- Koopprijs
- € 429.000,- k.k.
- Status
- Beschikbaar
- Bouwvorm
- Bestaande bouw
- Bouwjaar
- 1967
- Woonoppervlakte
- 62 m2
Lees hier een
Beschrijving
Ben je op zoek naar een licht appartement op een rustige en groene locatie in Amsterdam Buitenveldert? Wil je wonen met een ruim balkon op het westen en uitzicht op het groen? Vind je een centrale ligging nabij de Zuidas en vele voorzieningen belangrijk? Dan is Nijenburg 25 zeker een bezichtiging waard!
Echte kenmerken van Nijenburg 25:
– Licht 3-kamer hoekappartement;
– Berging in de onderbouw;
– Ruim balkon op het westen met vrij uitzicht op het groen;
– Nabij winkelcentrum Groot Gelderlandplein en Gijsbrecht van Aemstelpark
– Goede bereikbaarheid met zowel openbaar vervoer als de auto;
– Rustige ligging in het geliefde Buitenveldert
Is Nijenburg 25 echt wat voor jou?
In combinatie met de foto’s geven we je hieronder alvast een impressie van dit appartement.
Het appartement is gelegen op de 4e verdieping van een verzorgd complex en beschikt over een heerlijk ruim balkon op het westen, waar je kunt genieten van de middag- en avondzon en het uitzicht op het groen. Doordat het appartement aan het einde van de galerij ligt, lopen er nauwelijks mensen langs de woning, wat zorgt voor extra privacy. Indien gewenst kun je de keuken verplaatsen naar de woonkamer om een extra slaapkamer te creëren, waardoor er een 3-kamerappartement ontstaat. In de directe nabijheid bevindt zich winkelcentrum Groot Gelderlandplein voor al uw dagelijkse en niet-dagelijkse boodschappen. Winkelcentrum Rooswijck ligt aan de overkant van de weg, met onder andere een Jumbo en een nieuwe Albert Heijn. De ligging is zeer gunstig! Op korte afstand bevinden zich onder andere de Zuidas, NS-station Amsterdam Zuid, het WTC, station RAI, de Vrije Universiteit en het VU Medisch Centrum. Ook het Amsterdamse Bos en de Bosbaan liggen op korte afstand. Met de auto bereik je snel de Ring A10 en diverse uitvalswegen richting Schiphol en andere steden. Kortom, een ideaal appartement waar je zo in kunt.
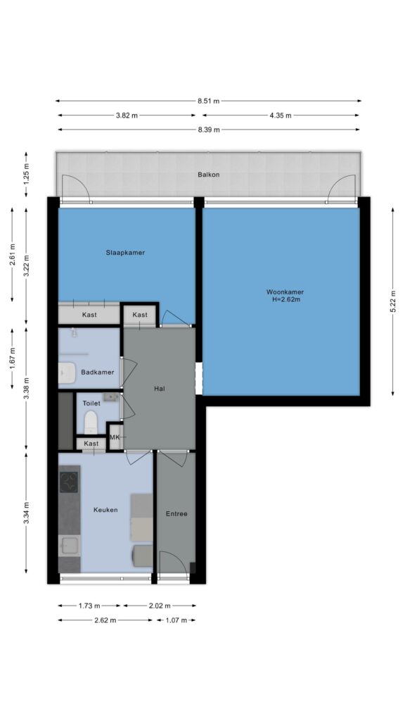
Indeling:
Begane grond:
Gemeenschappelijke entree met bellentableau, toegang tot de lift en het trappenhuis. Tevens toegang tot de bergingen in de onderbouw.
4e verdieping:
Bij binnenkomst in het appartement kom je in de hal, die toegang biedt tot alle vertrekken en beschikt over een praktische inbouwkast. De ruime en lichte woonkamer heeft grote ramen die veel daglicht binnenlaten en toegang bieden tot het balkon op het westen. De moderne, woonkeuken is voorzien van diverse apparatuur en kan, indien gewenst, worden verplaatst naar de woonkamer om een open keuken en extra slaapkamer te creëren. De slaapkamer is ruim en licht, met voldoende plek voor een tweepersoonsbed en vaste kasten. De badkamer is voorzien van een douche en wastafelmeubel. Het toilet is separaat en direct toegankelijk vanuit de hal. De woning is voorzien van een laminaatvloer.
Bijzonderheden:
– Balkon op het westen met uitzicht op groen;
– Berging in de onderbouw;
– HR++ beglazing voor en achterkant appartement
– Erfpachtsituatie t/m 15 april 2039, jaarlijkse canon van € 165,62;
– Ouderdoms- en asbestclausule zijn van toepassing;
– Actieve en professioneel beheerde VvE;
– Servicekosten bedragen ca. € 193,– per maand, exclusief ca. € 120,– aan stookkosten;
– Oplevering in overleg (kan snel).
Een rondleiding door dit appartement?
Neem contact met ons op. Wij laten Nijenburg 25 graag van binnen zien!
Kenmerken
Woning Algemeen
- Objecttype
- Appartement
- Huidig gebruik
- Woonruimte
- Huidige bestemming
- Woonruimte
- Permanente bewoning
- Ja
- Recreatiewoning
- Nee
- Liggingen
- Aan rustige weg, In woonwijk, Vrij uitzicht
- Inhoud
- 207 m3
- Woonoppervlakte
- 62 m2
- Gebruiksoppervlakte overige functies
- 0 m2
- Oppervlakte externe bergruimte
- 8 m2
- Buitenruimtes gebouwgebonden of vrijstaand
- 11 m2
- Bouwjaar
- 1967
- In aanbouw
- Nee
- Parkeer faciliteiten
- Betaald parkeren, Parkeervergunningen
- Aantal kamers
- 3
- Aantal slaapkamers
- 1
- Soort
- Galerijflat
- Kenmerk
- Appartement
- Open portiek
- Nee
- Woonlaag
- 4
- Aantal woonlagen
- 1
Overdracht
- Koopprijs
- € 429.000,- k.k.
- Bouwvorm
- Bestaande bouw
- Aanmeldingsreden
- In verkoop genomen
- Aanvaarding
- In overleg
- Status
- Beschikbaar
Woning onderhoud, schuur
- Isolatievormen
- Dubbelglas
- Dak type
- Plat dak
- Dak materialen
- Bitumineuze Dakbedekking
- Energieklasse
- C
- Energielabel einddatum
- 19 augustus 2035
- Waardering
- Goed
- Waardering
- Goed
- Soort
- Box
- Voorzieningen
- Voorzien van elektra
- Soorten verwarming
- Blokverwarming
- CV ketel combiketel
- Nee
- Soorten warm water
- Centrale voorziening, Stadsverwarming
- Bouwjaar
- 1967
- In aanbouw
- Nee
Woning Tuin, garage
- Tuintypen
- Geen tuin
- Achterom
- Nee
- Soorten
- Geen garage
- Parkeer faciliteiten
- Betaald parkeren, Parkeervergunningen
Video
Deze vind je vast leuk
Vergelijkaar aanbod
-
BeschikbaarAmsterdam - Hiraistraat 5B 58€ 425.000,- k.k.Bekijk woning
-
Onder bodAmsterdam - Adriaan van Bergenstraat 5-2€ 335.000,- k.k.Bekijk woning
-
Verkocht onder voorbehoudAmsterdam - Palembangstraat 3€ 375.000,- k.k.Bekijk woning
-
VerkochtAmsterdam - Haparandaweg 812€ 298.000,- k.k.Bekijk woning






