Soetendaal 192 Amsterdam
- Koopprijs
- € 885.000,- k.k.
- Status
- Verkocht
- Bouwvorm
- Bestaande bouw
- Bouwjaar
- 1960
- Woonoppervlakte
- 126 m2
Lees hier een
Beschrijving
Is een fraaie en lichte woning met een zonnige tuin op het zuiden belangrijk voor je? Wil je uniek wonen in een groene en prettige woonomgeving? Ben je op zoek naar een woning met een centrale ligging? Dan is Soetendaal 192 echt wat voor je!
Echte kenmerken voor Soetendaal 192:
– centrale locatie;
– fraaie afwerking;
– breder type woonhuis;
– zonnige achtertuin (Z);
– nabij winkelcentra:
– vanuit woonkamer via zijraam uitzicht op fraaie waterpartij.
In combinatie met de foto’s geven we je hieronder alvast een beknopte indruk deze woning.
Fraaie en goed onderhouden hoekwoning met berging en zonnige achtertuin op het zuiden!
Het geheel is gelegen in een groene en kindvriendelijke woonwijk in Amsterdam Buitenveldert, nabij het Gijsbrecht van Amstelpark, Rai, Zuidas, Amsterdamse Bos, op loopafstand van het winkelcentrum Groot Gelderlandplein, Rooswijck, Stadshart Amstelveen en uitvalswegen. Tevens is de woning gelegen in een prettige woonomgeving. Goed onderhouden en voorzien van verwarming middels cv.-ketel, gedeeltelijk dubbele beglazing, laminaatvloer en kopgevelraam voor extra lichtinval etc. Tijdens een bezichtiging kan je de rest van de gemakken van de woning aanschouwen!
Indeling:
begane grond:
entree/hal, inpandige berging met wasmachine- en drogeraansluiting, bergkast met opstelplaats voor cv.-ketel en toilet met fontein. Ruime en brede type woonkamer met zijraam dat uitzicht geeft op een fraaie waterpartij en toegang tot de zonnige achtertuin (Z) middels schuifpui. Half open inbouwkeuken aan de voorzijde van de woning met close-in boiler, oven, keramische kookplaat, afzuigkap, vaatwasser en koelkast met vriesvak. Woonkamer voorzien van een laminaatvloer en de hal en keuken zijn voorzien van een plavuizenvloer.
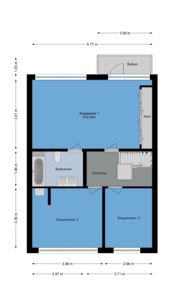
1e verdieping:
royale overloop met lichtkoepel, 3 ruime (slaap-) kamers waarvan 1 kamer met vaste kast en toegang heeft tot het balkon. Badkamer met ligbad annex douche, toilet, en dubbele wastafelmeubel. De verdieping is voorzien van vloerbedekking.
Bijzonderheden:
– erfpacht situatie t/m 30 april 2034, jaarlijkse canon van € 234,60;
– aanvraag overstap naar eeuwigdurende erfpacht onder gunstige voorwaarden is gedaan;
– asbestclausule, niet-zelfbewoningsclausule en ouderdomsclausule zijn van toepassing;
– oplevering in overleg.
Een rondleiding door dit fraaie woonhuis:
Neem contact met ons op, wij laten je deze woning graag van binnen zien!
Kenmerken
Woning Algemeen
- Objecttype
- Woonhuis
- Huidig gebruik
- Woonruimte
- Huidige bestemming
- Woonruimte
- Permanente bewoning
- Ja
- Recreatiewoning
- Nee
- Liggingen
- Aan rustige weg, In woonwijk, Beschutte ligging
- Inhoud
- 438 m3
- Woonoppervlakte
- 126 m2
- Gebruiksoppervlakte overige functies
- 0 m2
- Oppervlakte externe bergruimte
- 0 m2
- Buitenruimtes gebouwgebonden of vrijstaand
- 6 m2
- Perceel oppervlakte
- 163 m2
- Bouwjaar
- 1960
- In aanbouw
- Nee
- Parkeer faciliteiten
- Betaald parkeren, Parkeervergunningen
- Aantal kamers
- 4
- Aantal slaapkamers
- 3
- Aantal badkamers
- 1
Overdracht
- Koopprijs
- € 885.000,- k.k.
- Bouwvorm
- Bestaande bouw
- Aanmeldingsreden
- In verkoop genomen
- Aanvaarding
- In overleg
- Status
- Verkocht
Woning onderhoud, schuur
- Isolatievormen
- Gedeeltelijk dubbelglas
- Dak type
- Plat dak
- Dak materialen
- Bitumineuze Dakbedekking
- Energieklasse
- E
- Energielabel einddatum
- 6 november 2034
- Waardering
- Goed
- Waardering
- Goed
- Soort
- Inpandig
- Voorzieningen
- Voorzien van elektra
- Soorten verwarming
- CV ketel
- CV ketel type
- Intergas
- CV ketel bouwjaar
- 2013
- CV ketel brandstof
- Gas
- CV ketel eigendom
- Eigendom
- CV ketel combiketel
- Ja
- Soorten warm water
- CV ketel
- Perceel oppervlakte
- 163 m2
- Bouwjaar
- 1960
- In aanbouw
- Nee
Woning Tuin, garage
- Tuintypen
- Achtertuin
- Kwaliteit
- Verzorgd
- Type
- Achtertuin
- Positie
- Zuid
- Achterom
- Nee
- Lengte
- 1.300 m
- Breedte
- 700 m
- Oppervlakte
- 91 m2
- Soorten
- Geen garage
- Parkeer faciliteiten
- Betaald parkeren, Parkeervergunningen
Video
Bekijk de
Ligging
Deze vind je vast leuk
Vergelijkaar aanbod
-
BeschikbaarAmsterdam - Saenredamstraat 6-1€ 395.000,- k.k.Bekijk woning
-
BeschikbaarAmsterdam - Van Nijenrodeweg 14€ 335.000,- k.k.Bekijk woning
-
BeschikbaarAmsterdam - Bos en Lommerweg 336€ 628.000,- k.k.Bekijk woning
-
VerkochtAmsterdam - Arent Janszoon Ernststraat 777€ 375.000,- k.k.Bekijk woning






