fris makelaardij
Home  /  Woningen  /  Nijenburg 3 Amsterdam

Nijenburg 3 Amsterdam

Koopprijs
€ 498.000,- k.k.
Status
Verkocht
Bouwvorm
Bestaande bouw
Bouwjaar
1967
Woonoppervlakte
82 m2

Lees hier een

Beschrijving

Ben je op zoek naar een licht en goed ingedeeld 3-kamer (voormalig 4) appartement in Amsterdam Buitenveldert? Wil je wonen in een rustige, groene buurt met uitstekende bereikbaarheid en een balkon op het westen? Is een centrale ligging belangrijk voor je? Dan is Nijenburg 3 echt wat voor jou!

Echte kenmerken van Nijenburg 3:
– Ruim en licht 3-kamer appartement;
– Zonnig balkon op het westen;
– Gelegen in het geliefde Buitenveldert-West;
– Nabij winkelcentrum Groot Gelderlandplein en Rooswijck;
– Goede bereikbaarheid met zowel openbaar vervoer als de auto;
– Fietsafstand van het centrum van Amsterdam en Station Zuid.

Is Nijenburg 3 echt wat voor jou?
In combinatie met de foto’s geven we je hieronder alvast een beknopte indruk van dit aantrekkelijke appartement.

Dit ruime appartement is gelegen op de 1e verdieping van een verzorgd complex, gebouwd omstreeks 1967. Dankzij de ligging geniet je van extra lichtinval en privacy. De woning beschikt over een zonnig balkon op het westen waar je heerlijk van de middag- en avondzon kunt genieten. Het complex bevindt zich in een groene en rustige wijk. Daarnaast is in de directe nabijheid het winkelcentrum Groot Gelderlandplein voor al uw dagelijkse en niet dagelijkse boodschappen. Winkelcentrum Rooswijck is gelegen aan de overkant van de weg met o.a. een Jumbo en een nieuwe Albert Heijn. De ligging is ideaal: op loopafstand bevinden zich scholen, sportvelden, de Vrije Universiteit en het VU academisch ziekenhuis en Zuidas. De openbaar vervoer voorzieningen zijn uitstekend met de tram, trein en bushaltes. Op korte afstand ligt de Ring A-10 die verbinding geeft met de A-4, A-9, A2 en de A-1. Kortom, een ideaal appartement die je zeker gezien moet hebben!

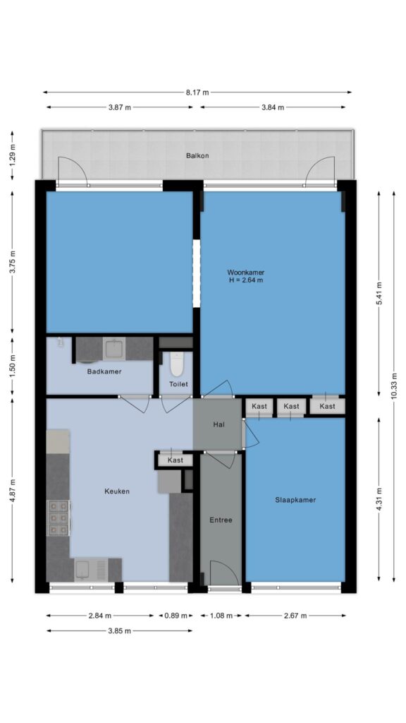
Indeling:
Begane grond:
gemeenschappelijke entree met intercom, brievenbussen, lift en toegang tot de bergingen in de onderbouw.

1e Verdieping:
entree/hal met meterkast en vaste kast, separaat toilet met fontein. Royale en lichte woonkamer (vergroot door een samenvoeging maar eenvoudig terug te brengen) met toegang tot het balkon. Dichte woonkeuken met diverse inbouwapparatuur te weten: 5-pits gaskookplaat met oven en rvs-schouwkap, koel-/vriescombinatie en vaatwasser. Ruime slaapkamer. De badkamer is voorzien van een inloopdouche en een wastafel. De woning is grotendeels voorzien van een nette parket vloerafwerking.

Bijzonderheden:
– Balkon op het westen met uitzicht op groen;
– Berging in de onderbouw;
– Erfpacht situatie t/m 15 april 2039, jaarlijkse canon van € 183,32;
– Overstapakte is gepasseerd, vanaf 16 oktober 2039 eeuwigdurende erfpacht met jaarlijkse canon van € 379,81 met jaarlijkse indexering;
– Ouderdoms- en asbestclausule zijn van toepassing;
– Actieve en professioneel beheerde VvE;
– Energielabel B;
– Oplevering in overleg.

Een rondleiding door dit fijne appartement?
Neem contact met ons op, wij laten Nijenburg 3 graag van binnen zien!

Lees meer
Lees minder
Vragen? Neem contact met op Kasper Goris
Kantoordirecteur Woningmakelaars Amsterdam

Plan een bezichtiging

Kenmerken

Woning Algemeen

Objecttype
Appartement
Huidig gebruik
Woonruimte
Huidige bestemming
Woonruimte
Permanente bewoning
Ja
Recreatiewoning
Nee
Liggingen
Aan rustige weg, In woonwijk
Inhoud
265 m3
Woonoppervlakte
82 m2
Gebruiksoppervlakte overige functies
0 m2
Oppervlakte externe bergruimte
8 m2
Buitenruimtes gebouwgebonden of vrijstaand
11 m2
Bouwjaar
1967
In aanbouw
Nee
Parkeer faciliteiten
Betaald parkeren, Parkeervergunningen
Aantal kamers
3
Aantal slaapkamers
2
Aantal badkamers
1
Soort
Galerijflat
Kenmerk
Appartement
Open portiek
Nee
Woonlaag
1
Aantal woonlagen
1

Overdracht

Koopprijs
€ 498.000,- k.k.
Bouwvorm
Bestaande bouw
Aanmeldingsreden
In verkoop genomen
Aanvaarding
In overleg
Status
Verkocht

Woning onderhoud, schuur

Dak type
Plat dak
Dak materialen
Bitumineuze Dakbedekking
Energieklasse
B
Energielabel einddatum
5 februari 2035
Waardering
Goed
Waardering
Goed
Soort
Box
Voorzieningen
Voorzien van elektra
Soorten verwarming
Blokverwarming
CV ketel combiketel
Nee
Soorten warm water
Centrale voorziening, Stadsverwarming
Bouwjaar
1967
In aanbouw
Nee

Woning Tuin, garage

Tuintypen
Geen tuin
Achterom
Nee
Soorten
Geen garage
Parkeer faciliteiten
Betaald parkeren, Parkeervergunningen

Plattegronden

Foto's

Video

Bekijk de

Ligging

Fris Wonen
Privacyoverzicht

Deze site maakt gebruik van cookies, zodat wij je de best mogelijke gebruikerservaring kunnen bieden. Cookie-informatie wordt opgeslagen in je browser en voert functies uit zoals het herkennen wanneer je terugkeert naar onze site en helpt ons team om te begrijpen welke delen van de site je het meest interessant en nuttig vindt.

Deel deze pagina:

Kies voor een persoonlijk contact

Informatie nodig?

amsterdam
FRIS Woningmakelaars Amsterdam
Buitenveldertselaan 42
1081 AA Amsterdam
+31(0)20 - 301 77 15
zaandam
FRIS Woningmakelaars Zaandam
Westzijde 83
1506 GA Zaandam
+31(0)75 - 655 50 90