Brink 78 Amstelveen
- Koopprijs
- € 385.000,- k.k.
- Status
- Verkocht
- Bouwvorm
- Bestaande bouw
- Bouwjaar
- 2020
- Woonoppervlakte
- 56 m2
Lees hier een
Beschrijving
Ben je op zoek naar een recent gebouwd appartement? Wil je wonen in een vriendelijke en groene woonwijk? Is een centrale ligging en direct bij het winkelcentrum “Middenhoven” belangrijk voor je? Dan is Brink 78 echt wat voor jou!
Echte kenmerken voor Brink 78:
– licht 2-kamer appartement;
– moderne inbouwkeuken en badkamer.
– energielabel A+;
– zonnige loggia op het zuiden;
– rustige en groene omgeving.
Is de Brink 78 echt wat voor jou?
In combinatie met de foto’s geven we je hieronder alvast een beknopte indruk van deze woning.
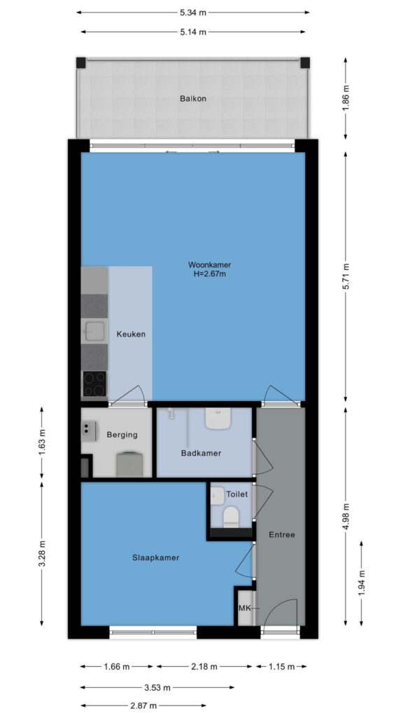
Dit recent gebouwde appartement (ca. 2020) heeft een heerlijk lichte woonkamer met schuifpui naar de zonnige loggia op het zuiden. Het appartement ligt in de fijne woonwijk “Middenhoven” in Amstelveen, een kindvriendelijke en groene omgeving. Alle dagelijkse voorzieningen zijn binnen handbereik: winkelcentra, (internationale) scholen, sportfaciliteiten, openbaar vervoer en uitvalswegen. Ook het Wijkpark Middenhoven, de Amstel en zelfs Amsterdam zijn dichtbij voor ontspanning en recreatie. Het appartement is uitstekend onderhouden en beschikt over een nette laminaatvloer, een moderne open keuken en badkamer, cv installatie en dubbel glas. Een prachtige kans voor wie comfortabel en energiezuinig wil wonen!
Indeling:
Begane grond:
afgesloten entree met bellenplateau, lift, brievenbussen en een algemene gedeelde fietsenberging.
1e verdieping:
entree/hal met meterkast, vervolgens geeft de hal toegang tot alle vertrekken. Royale en lichte woonkamer met toegang de zonnige en ruime loggia middels schuifpui. Open inbouwkeuken voorzien van diverse inbouwapparatuur te weten: rvs-schouwkap, gaskookplaat, combimagnetron, vaatwasser en koel-vriescombinatie. Aansluitend aan de keuken bevindt zich de inpandige berging met opstelplaats voor cv-ketel. Ruime slaapkamer. De verdieping is voorzien van een fraaie laminaatvloer.
1e verdieping:
separate berging op de verdieping.
Bijzonderheden:
– dubbele beglazing;
– 4 zonnepanelen;
– combiketel (2019);
– gedeelde zonnepanelen;
– niet zelfbewoningsclausule van toepassing;
– servicekosten bedragen per maand ca. € 125,95 voor de woning en € 11,05 voor de berging;
– project notaris: Dudok Legal Amsterdam.
Een rondleiding door dit fraaie appartement?
Neem contact met ons op, dan laten we deze woning graag van binnen zien!
Kenmerken
Woning Algemeen
- Objecttype
- Appartement
- Huidig gebruik
- Woonruimte
- Huidige bestemming
- Woonruimte
- Bouwrijp
- Nee
- Permanente bewoning
- Ja
- Recreatiewoning
- Nee
- Liggingen
- Aan rustige weg, In woonwijk
- Inhoud
- 185 m3
- Woonoppervlakte
- 56 m2
- Gebruiksoppervlakte overige functies
- 0 m2
- Oppervlakte externe bergruimte
- 5 m2
- Buitenruimtes gebouwgebonden of vrijstaand
- 10 m2
- Bouwjaar
- 2020
- In aanbouw
- Nee
- Parkeer faciliteiten
- Openbaar parkeren
- Aantal kamers
- 2
- Aantal slaapkamers
- 1
- Aantal badkamers
- 1
- Soort
- Bovenwoning
- Kenmerk
- Appartement
- Open portiek
- Nee
- Woonlaag
- 1
- Aantal woonlagen
- 1
Overdracht
- Koopprijs
- € 385.000,- k.k.
- Bouwvorm
- Bestaande bouw
- Aanmeldingsreden
- In verkoop genomen
- Aanvaarding
- In overleg
- Status
- Verkocht
Woning onderhoud, schuur
- Isolatievormen
- Dakisolatie, Muurisolatie, Dubbelglas, HR glas
- Dak type
- Plat dak
- Dak materialen
- Bitumineuze Dakbedekking
- Energieklasse
- A+
- Energielabel einddatum
- 14 oktober 2033
- Waardering
- Goed
- Waardering
- Goed
- Soort
- Box
- Voorzieningen
- Voorzien van elektra
- Isolatievormen
- Geen isolatie
- Soorten verwarming
- CV ketel
- CV ketel type
- Remeha avanta
- CV ketel bouwjaar
- 2019
- CV ketel brandstof
- Gas
- CV ketel eigendom
- Eigendom
- CV ketel combiketel
- Ja
- Soorten warm water
- CV ketel
- Bouwjaar
- 2020
- In aanbouw
- Nee
Woning Tuin, garage
- Tuintypen
- Geen tuin
- Achterom
- Nee
- Soorten
- Geen garage
- Parkeer faciliteiten
- Openbaar parkeren






