Wamelstraat 35 Amsterdam
- Koopprijs
- € 325.000,- k.k.
- Status
- Tijdelijk ingetrokken
- Bouwvorm
- Bestaande bouw
- Bouwjaar
- 1983
- Woonoppervlakte
- 60 m2
Lees hier een
Beschrijving
Ben je op zoek naar een prachtig gerenoveerd (2024) appartement met zonnig balkon (W)? Wil je wonen in een rustige en groene buurt? Is een centrale ligging nabij diverse faciliteiten belangrijk voor je?
Dan is Wamelstraat 35 echt wat voor jou!
Kenmerken van Wamelstraat 35:
– ruim appartement met optie voor een tweede slaapkamer;
– zonnig balkon op het westen;
– gelegen op de 3e verdieping van een kleinschalig complex;
– groene en rustige woonomgeving;
– op loopafstand van winkelcentrum Gein en nabij Reigersbos;
– uitstekende bereikbaarheid met zowel auto als openbaar vervoer;
– voldoende (gratis) parkeergelegenheid in de buurt.
Is Wamelstraat 35 iets voor jou?
In combinatie met de foto’s krijg je een goed beeld van de mogelijkheden!
Wonen in een rustige en groene omgeving met alles binnen handbereik, Wamelstraat 35 is een luxe en goed ingedeeld appartement gelegen op de 3e en bovenste verdieping van een appartementen gebouw in de wijk Gein. het appartement is gesitueerd op korte afstand van de A9, A1, A2 en A10. Metrostation Gein en busverbindingen zijn op loopafstand. Voor ontspanning kan je gaan wandelen, joggen, picknicken of zwemmen bij de Gaasperplas. Bovenop de A9 bevindt zich het Brasapark, qua grootte 2x het Vondelpark! Op ca. 5 minuten lopen ligt een grote sportschool en vind je alle winkels voor je dagelijkse boodschappen. Basisscholen en scholen voor voortgezet onderwijs zijn in de directe omgeving voldoende aanwezig. Goed onderhouden en recent luxe gerenoveerd (2024) met o.a. nieuwe inbouwkeuken, badkamer, vloerverwarming, cv.-ketel, meterkast, stuukwerk en schilderwerk etc. Kortom, een luxe afgewerkt appartement die je zeker gezien moet hebben.
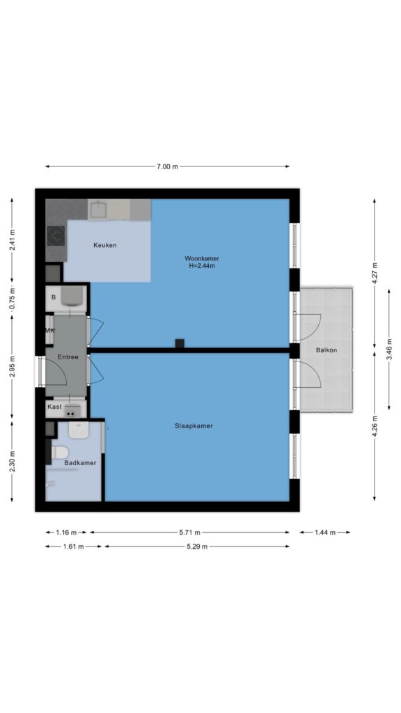
Indeling:
Begane grond:
Centrale entree met brievenbussen, trapopgang naar de verdiepingen.
3e verdieping:
entree/hal met toegang tot alle vertrekken. De lichte woonkamer aan de achterzijde biedt toegang tot het zonnige balkon (ligging west). Luxe half open inbouwkeuken voorzien van diverse inbouwapparatuur te weten: combimagnetron, koel-/vriescombinatie, vaatwasser, inductiekookplaat en rvs-schouwkap. De huidige slaapkamer is ruim opgezet en biedt de mogelijkheid om eenvoudig een vaste wand te plaatsen, waardoor er een 2e slaapkamer kan worden gecreëerd. Vanuit de slaapkamer heb je mede toegang tot het balkon. Luxe badkamer met inloopdouche, wastafelmeubel en hangend toilet. Separate bergkast met wasmachine- en drogeraansluiting.
Bijzonderheden:
– grotendeels gerenoveerd in 2024;
– appartement wat geheel naar eigen idee is in te richten;
– verwarming middels cv.-ketel (2024);
– voorzien van dubbele beglazing;
– ouderdoms- en asbestclausule zijn van toepassing;
– erfpacht afgekocht t/m 30 september 2033;
– servicekosten ca. € 109,– per maand;
– oplevering in overleg.
Een rondleiding door dit lichte en luxe appartement?
Neem contact met ons op, dan laten we je Wamelstraat 35 graag van binnen zien!
Kenmerken
Woning Algemeen
- Objecttype
- Appartement
- Huidig gebruik
- Woonruimte
- Huidige bestemming
- Woonruimte
- Permanente bewoning
- Ja
- Recreatiewoning
- Nee
- Liggingen
- Aan rustige weg, In woonwijk
- Inhoud
- 187 m3
- Woonoppervlakte
- 60 m2
- Gebruiksoppervlakte overige functies
- 0 m2
- Oppervlakte externe bergruimte
- 0 m2
- Buitenruimtes gebouwgebonden of vrijstaand
- 5 m2
- Bouwjaar
- 1983
- In aanbouw
- Nee
- Parkeer faciliteiten
- Openbaar parkeren
- Aantal kamers
- 3
- Aantal slaapkamers
- 2
- Aantal badkamers
- 1
- Soort
- Portiekflat
- Kenmerk
- Appartement
- Open portiek
- Nee
- Woonlaag
- 3
- Aantal woonlagen
- 1
Overdracht
- Koopprijs
- € 325.000,- k.k.
- Bouwvorm
- Bestaande bouw
- Aanmeldingsreden
- In verkoop genomen
- Aanvaarding
- In overleg
- Status
- Tijdelijk ingetrokken
Woning onderhoud, schuur
- Isolatievormen
- Dubbelglas
- Dak type
- Plat dak
- Dak materialen
- Bitumineuze Dakbedekking
- Energieklasse
- C
- Energielabel einddatum
- 18 december 2030
- Waardering
- Goed
- Waardering
- Goed
- Soort
- Inpandig
- Voorzieningen
- Voorzien van elektra
- Soorten verwarming
- CV ketel
- CV ketel type
- Intergas
- CV ketel bouwjaar
- 2024
- CV ketel brandstof
- Gas
- CV ketel eigendom
- Eigendom
- CV ketel combiketel
- Ja
- Soorten warm water
- CV ketel
- Bouwjaar
- 1983
- In aanbouw
- Nee
Woning Tuin, garage
- Tuintypen
- Geen tuin
- Achterom
- Nee
- Soorten
- Geen garage
- Parkeer faciliteiten
- Openbaar parkeren




