Hugo de Vrieslaan 336 Amsterdam
- Huurprijs
- € 2.889,- p/m
- Status
- Verhuurd
- Bouwvorm
- Nieuwbouw
- Bouwjaar
- 2023
- Woonoppervlakte
- 109 m2
Lees hier een
Beschrijving
Website: amst.amsterdam
Ontdek het urban living gevoel in je eigen Mokumse paleis. Jonge koppels of alleenstaanden kunnen in AMST een heerlijk paleis creëren in dit ruime driekamerappartement.
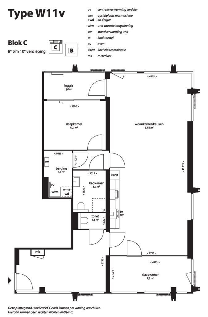
Stap binnen in je eigen Amsterdamse paleis van circa 109m² en voel je meteen thuis in de welkomsthal. Hier maak je de deur open naar een separaat toilet of loop je door naar de riante woonruimte. De fraai afgewerkte Bruynzeel keukens is een pronkstuk. Hier maak jij straks als een mokums keukenprins(es) culinaire gerechten klaar. In de keuken vind je een inbouw Bosch koelkast, vaatwasser, oven, inductieplaat en afzuigkap.
In een ruime woonkamer circa 52m² kun je met gemak een luxe zitgedeelte maken en een fijne eethoek. Heerlijk buiten zijn doe je op je eigen loggia. Daar proost je straks met een cocktail op the urban living experience. Hier zit je elk seizoen comfortabel door de overkapping. Met wat leuke planten en bloempotten heb je zo je eigen groene paradijs georganiseerd met waanzinnig uitzicht op het levendige Amsterdam.
De woonkamer geeft je ook toegang tot een extra slaap-, hobby-, of werkkamer. Dat maakt dit appartement perfect voor een gezin of een koppel dat graag een separate werkkamer heeft. Als je rondkijkt in je eigen heerlijke woonkamer valt je nog een deur op. Deze deur brengt jou naar een hal met vier deuren. Hier vind je een ideale berging, de ruime badkamer, een meterkast en je eigen master bedroom. In de slaapkamer kun je makkelijk een groot bed kwijt en heb je genoeg ruimte voor kasten. Elke woning is voorzien van een eiken look PVC vloer en de wanden zijn afgewerkt.
Bijzonderheden:
– je dient je te registreren via de projectwebsite: amst.amsterdam;
– inkomenseis: eenverdiener 3x bruto maandinkomen (ex. vakantiegeld, bonus etc.);
– inkomenseis: tweeverdieners 4x bruto maandinkomen (ex. vakantiegeld, bonus etc.);
– zzp eisen kun je terugvinden in de FAQ op de website.
Kenmerken
Woning Algemeen
- Objecttype
- Appartement
- Huidig gebruik
- Woonruimte
- Huidige bestemming
- Woonruimte
- Permanente bewoning
- Ja
- Recreatiewoning
- Nee
- Liggingen
- In centrum, In woonwijk, Vrij uitzicht
- Inhoud
- 327 m3
- Woonoppervlakte
- 109 m2
- Gebruiksoppervlakte overige functies
- 0 m2
- Oppervlakte externe bergruimte
- 4 m2
- Buitenruimtes gebouwgebonden of vrijstaand
- 0 m2
- Bouwjaar
- 2023
- In aanbouw
- Nee
- Bijzonderheden
- Gedeeltelijk gestoffeerd
- Parkeer faciliteiten
- Betaald parkeren
- Parkeren toelichting
- Publieke garage in pand
- Aantal kamers
- 3
- Aantal slaapkamers
- 2
- Aantal badkamers
- 1
- Soort
- Galerijflat
- Kenmerk
- Appartement
- Open portiek
- Nee
- Woonlaag
- 10
- Aantal woonlagen
- 1
Overdracht
- Huurprijs
- € 2.889,- p/m
- Bouwvorm
- Nieuwbouw
- Huurprijs
- € 2.889,- p/m
- Huurconditie
- p/m
- Servicekosten per maand
- € 80,-
- Aanmeldingsreden
- In verhuur genomen
- Aanvaarding
- Direct
- Status
- Verhuurd
Woning onderhoud, schuur
- Isolatievormen
- Volledig geïsoleerd
- Dak type
- Plat dak
- Energieklasse
- A++
- Energielabel einddatum
- 15 maart 2033
- Waardering
- Uitstekend
- Waardering
- Uitstekend
- Soorten verwarming
- Stadsverwarming, Vloerverwarming geheel, Warmte terugwininstallatie
- CV ketel combiketel
- Nee
- Soorten warm water
- Stadsverwarming
- Bouwjaar
- 2023
- In aanbouw
- Nee
Woning Tuin, garage
- Tuintypen
- Geen tuin
- Achterom
- Nee
- Soorten
- Geen garage
- Parkeer faciliteiten
- Betaald parkeren
- Parkeren toelichting
- Publieke garage in pand
Bekijk de
Ligging
Dichtbij
In de buurt
-
Verkocht onder voorbehoudAmsterdam - Gaaspstraat 3-2€ 525.000,- k.k.Bekijk woning
-
VerkochtAmsterdam - Saenredamstraat 6-1€ 395.000,- k.k.Bekijk woning
-
VerkochtAmsterdam - Hiraistraat 5B 119€ 601.000,- v.o.n.Bekijk woning
-
VerkochtAmsterdam - Hiraistraat 5B 161€ 759.000,- v.o.n.Bekijk woning



