Berlaarstraat 193 Amsterdam
- Koopprijs
- € 555.000,- k.k.
- Status
- Beschikbaar
- Bouwvorm
- Bestaande bouw
- Bouwjaar
- 1992
- Woonoppervlakte
- 92 m2
Lees hier een
Beschrijving
Ben je op zoek naar een instap klaar en licht appartement met zonnig balkon op het zuiden? Wil je wonen in een rustige en groene omgeving in Amsterdam? Is een centrale ligging belangrijk voor je? Dan is Berlaarstraat 193 echt iets voor jou!
Echte kenmerken voor Berlaarstraat:
– Energielabel A;
– Licht 3-kamer appartement;
– Gerenoveerd in 2025;
– Moderne inbouwkeuken en luxe badkamer;
– Zonnig balkon op het zuiden;
– interne en externe berging aanwezig;
– Gelegen in een rustige en groene woonomgeving.
Is Berlaarstraat jouw nieuwe thuis?
In combinatie met de foto’s geven we je hieronder alvast een beknopte indruk van deze woning.
Wonen in Nieuw Sloten
Dit moderne en volledig gerenoveerde 3-kamerappartement van circa 88 m² is gelegen op de vierde verdieping van een goed onderhouden complex met lift. De woning is in 2025 grondig vernieuwd en afgewerkt met oog voor detail. Hierdoor kun je zonder klussen direct verhuizen. Het appartement ligt in de rustige en groene wijk Nieuw Sloten, een kindvriendelijke omgeving met alle dagelijkse voorzieningen binnen handbereik. Op loopafstand bevindt zich winkelcentrum Belgiëplein met diverse winkels, supermarkten en horecagelegenheden. Daarnaast zijn scholen, sportfaciliteiten en recreatiemogelijkheden zoals de Sloterplas, het Amsterdamse Bos en De Oeverlanden dichtbij.
De bereikbaarheid is uitstekend: tramlijn 2 brengt je in circa 20 minuten naar het centrum van Amsterdam en via de A4, A9 en A10 ben je snel onderweg richting Schiphol, Utrecht of Haarlem.
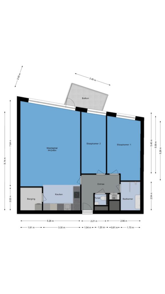
Indeling:
Begane grond:
Centrale entree met bellenplateau, brievenbussen, liftinstallatie en toegang tot de bergingen.
Vierde verdieping:
Entree/hal met toegang tot alle vertrekken. De royale en lichte woonkamer beschikt over grote raampartijen en een open keuken met moderne inbouwapparatuur. Vanuit de woonkamer bereik je het zonnige balkon op het zuiden, een heerlijke plek om te ontspannen. De woning beschikt over twee ruime slaapkamers. De luxe badkamer is voorzien van een inloopdouche en dubbele wastafel. Daarnaast is er een separaat toilet en een praktische inpandige berging met aansluiting voor wasmachine en droger. Het gehele appartement is strak afgewerkt met een moderne laminaatvloer, glad gestucte wanden en een frisse uitstraling.
Bijzonderheden:
– Nieuwe keuken met moderne inbouwapparatuur;
– Luxe badkamer met inloopdouche en dubbele wastafel;
– Strak stuc- en schilderwerk;
– Nieuwe laminaatvloer door de gehele woning;
– Servicekosten bedragen ca. € 249,27 per maand;
– Energiezuinig appartement (label A);
– Canon afgekocht t/m 28-2-2041;
– Overgestapt naar eeuwigdurende erfpacht (AB2016);
– Vanaf 1-3-2041 eeuwigdurende erfpacht met jaarlijkse canon van € 185,93 met jaarlijkse inflatiecorrectie;
– Niet zelfbewonings-, asbest en ouderdomsclausule zijn van toepassing;
– Vaste projectnotaris VDB Notarissen;
– Oplevering in overleg.
Een instap klaar, licht en energiezuinig appartement met zonnig balkon (Z) op een rustige locatie in Amsterdam.
Een rondleiding door deze woning? Neem contact met ons op, wij laten je het appartement graag van binnen zien!
Kenmerken
Woning Algemeen
- Objecttype
- Appartement
- Huidig gebruik
- Woonruimte
- Huidige bestemming
- Woonruimte
- Permanente bewoning
- Ja
- Recreatiewoning
- Nee
- Liggingen
- Aan rustige weg, In woonwijk
- Inhoud
- 283 m3
- Woonoppervlakte
- 92 m2
- Gebruiksoppervlakte overige functies
- 0 m2
- Oppervlakte externe bergruimte
- 3 m2
- Buitenruimtes gebouwgebonden of vrijstaand
- 6 m2
- Bouwjaar
- 1992
- In aanbouw
- Nee
- Parkeer faciliteiten
- Betaald parkeren, Parkeervergunningen
- Aantal kamers
- 3
- Aantal slaapkamers
- 2
- Aantal badkamers
- 1
- Soort
- Tussenverdieping
- Kenmerk
- Appartement
- Open portiek
- Nee
- Woonlaag
- 4
- Aantal woonlagen
- 1
Overdracht
- Koopprijs
- € 555.000,- k.k.
- Bouwvorm
- Bestaande bouw
- Aanmeldingsreden
- In verkoop genomen
- Aanvaarding
- In overleg
- Status
- Beschikbaar
Woning onderhoud, schuur
- Isolatievormen
- Dakisolatie, Muurisolatie, Dubbelglas, Volledig geïsoleerd
- Dak type
- Plat dak
- Dak materialen
- Bitumineuze Dakbedekking
- Energieklasse
- A
- Energielabel einddatum
- 10 november 2031
- Waardering
- Goed
- Waardering
- Goed
- Soort
- Box
- Totaal aantal
- 1
- Soorten verwarming
- CV ketel
- CV ketel type
- Remeha
- CV ketel bouwjaar
- 2023
- CV ketel brandstof
- Gas
- CV ketel eigendom
- Eigendom
- CV ketel combiketel
- Ja
- Soorten warm water
- CV ketel
- Bouwjaar
- 1992
- In aanbouw
- Nee
Woning Tuin, garage
- Tuintypen
- Geen tuin
- Achterom
- Nee
- Soorten
- Geen garage
- Parkeer faciliteiten
- Betaald parkeren, Parkeervergunningen
Deze vind je vast leuk
Vergelijkaar aanbod
-
BeschikbaarAmsterdam - Van Suchtelen van de Haarestraat 22C€ 495.000,- k.k.Bekijk woning
-
BeschikbaarAmsterdam - Marnixstraat 323-4B€ 495.000,- k.k.Bekijk woning
-
BeschikbaarAmsterdam - Nijenburg 25€ 429.000,- k.k.Bekijk woning
-
BeschikbaarAmsterdam - Berlaarstraat 107€ 509.000,- k.k.Bekijk woning






