Arent Janszoon Ernststraat 777 Amsterdam
- Koopprijs
- € 375.000,- k.k.
- Status
- Onder bod
- Bouwvorm
- Bestaande bouw
- Bouwjaar
- 1962
- Woonoppervlakte
- 49 m2
Lees hier een
Beschrijving
Wil je wonen op een centrale locatie nabij diverse voorzieningen en het geliefde Gelderlandplein Winkelcentrum? Is wooncomfort belangrijk voor je? Ben je op zoek naar een fraai en goed onderhouden appartement op een uitstekende plek in Buitenveldert-West? Dan is Arent Janszoon Ernststraat 777 echt wat voor jou!
Echte kenmerken voor Arent Janszoon Ernststraat 777:
– Energielabel C
– Moderne afwerking;
– Instap-klaar appartement;
– Balkon op het Noordoosten;
– Prettige uitkijk vanuit de woonkamer;
– Badkamer met douche en wastafelmeubel.
Is Arent Janszoon Ernststraat 777 echt wat voor je?
In combinatie met de foto’s geven we je hieronder alvast een beknopte indruk van het appartement.
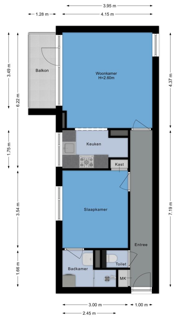
Dit lichte 2-kamer appartement met balkon en berging ligt in het groene en rustige Buitenveldert-West. De buurt staat bekend om zijn ontspannen sfeer, brede straten en veel water en groen. De woning ligt op een ideale locatie, op loopafstand van het winkelcentrum Gelderlandplein, diverse supermarkten, sportfaciliteiten, openbaar vervoer en de Zuidas. Ook het Amstelpark en het Amsterdamse Bos liggen binnen handbereik, perfect voor wandelen, sporten of simpelweg ontspannen in de natuur. De woning is gebouwd in 1962, heeft een woonoppervlakte van 46 m² en een energielabel C, geheel passend bij het gemiddelde van de straat. Het appartement is daarmee efficiënt ingedeeld. Qua bereikbaarheid is deze locatie fantastisch: openbaar vervoer op loopafstand, fietsafstand van het centrum en de eerste uitvalsweg ligt al op 2 minuten rijden. Parkeren gebeurt middels vergunningen, die over het algemeen goed verkrijgbaar zijn in deze wijk.
Indeling:
Begane grond:
Centrale entree/hal met afgesloten entree, intercom en brievenbussen. Toegang tot het trappenhuis, lift en bergingen.
3e verdieping:
entree/ruime hal met toegang tot de lichte woonkamer. De woonkamer biedt toegang tot het balkon. De half open keuken is praktisch ingedeeld en voorzien van diverse apparatuur. Er is een slaapkamer van goed formaat en een badkamer met douche, wastafel en ruimte voor wasmachineaansluiting. Het appartement beschikt verder over een extra berging in de onderbouw.
Bijzonderheden:
– Berging in de onderbouw;
– Goede bereikbaarheid met OV;
– Erfpacht afgekocht t/m 15 februari 2086;
– Niet zelfbewonings-, ouderdoms- en asbestclausule zijn van toepassing;
– VvE-bijdrage bedraagt ca. € 139,00 p/m;
– Oplevering in overleg;
Een rondleiding door dit fijne appartement?
Neem contact met ons op, wij laten je deze woning graag van binnen zien!
Kenmerken
Woning Algemeen
- Objecttype
- Appartement
- Huidig gebruik
- Woonruimte
- Huidige bestemming
- Woonruimte
- Permanente bewoning
- Ja
- Recreatiewoning
- Nee
- Liggingen
- In woonwijk
- Inhoud
- 170 m3
- Woonoppervlakte
- 49 m2
- Gebruiksoppervlakte overige functies
- 0 m2
- Oppervlakte externe bergruimte
- 5 m2
- Buitenruimtes gebouwgebonden of vrijstaand
- 5 m2
- Bouwjaar
- 1962
- In aanbouw
- Nee
- Parkeer faciliteiten
- Betaald parkeren, Parkeervergunningen
- Aantal kamers
- 2
- Aantal slaapkamers
- 1
- Aantal badkamers
- 1
- Soort
- Portiekflat
- Kenmerk
- Appartement
- Open portiek
- Nee
- Woonlaag
- 3
- Aantal woonlagen
- 1
Overdracht
- Koopprijs
- € 375.000,- k.k.
- Bouwvorm
- Bestaande bouw
- Aanmeldingsreden
- In verkoop genomen
- Aanvaarding
- In overleg
- Status
- Onder bod
Woning onderhoud, schuur
- Isolatievormen
- Dubbelglas
- Dak type
- Plat dak
- Dak materialen
- Bitumineuze Dakbedekking
- Energieklasse
- C
- Energielabel einddatum
- 25 oktober 2035
- Waardering
- Goed
- Waardering
- Goed
- Soort
- Box
- Voorzieningen
- Voorzien van elektra
- Soorten verwarming
- Blokverwarming
- CV ketel combiketel
- Nee
- Soorten warm water
- Elektrische boiler eigendom
- Bouwjaar
- 1962
- In aanbouw
- Nee
Woning Tuin, garage
- Tuintypen
- Geen tuin
- Achterom
- Nee
- Soorten
- Geen garage
- Parkeer faciliteiten
- Betaald parkeren, Parkeervergunningen
Video
Bekijk de
Ligging
Dichtbij
In de buurt
-
Verkocht onder voorbehoudAmsterdam - Valkhof 112€ 450.000,- k.k.Bekijk woning
-
Verkocht onder voorbehoudAmsterdam - Buitenveldertselaan 47€ 525.000,- k.k.Bekijk woning
-
VerkochtAmsterdam - Asingaborg 8€ 450.000,- k.k.Bekijk woning
-
VerkochtAmsterdam - Heringa-State 66€ 550.000,- k.k.Bekijk woning






