Valkhof 112 Amsterdam
- Koopprijs
- € 450.000,- k.k.
- Status
- Verkocht
- Bouwvorm
- Bestaande bouw
- Bouwjaar
- 1963
- Woonoppervlakte
- 67 m2
Lees hier een
Beschrijving
Droom jij van een zonnig appartement in Amsterdam met een royale woonkamer en veel lichtinval? Zoek je een plek die comfort, bereikbaarheid én karakter moeiteloos combineert?
En wil je wonen op een centrale locatie met rust, groen én alle hotspots binnen handbereik, ideaal voor zowel starters, doorstromers als expats?
Dan is Valkhof 112 precies wat je zoekt!
Kenmerken van Valkhof 112:
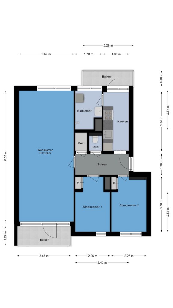
– Doorzonwoning van 67 m² met een royale, lichte woonkamer;
– Twee slaapkamers aan elkaar grenzend;
– Twee zonnige balkons gelegen op het oosten en westen, waardoor je kunt genieten van zowel de zonsopkomst als zonsondergang;
– Gesloten keuken met toegang tot het balkon aan de voorzijde;
– Eigen berging in de onderbouw;
– Mogelijkheid tot 2 parkeervergunningen;
– Inrichting over te nemen, direct instapklaar als je wilt;
– Gelegen aan een groene, openbare binnentuin;
Is Valkhof 112 wat voor jou?
In combinatie met de foto’s geven we je hieronder alvast een beknopte indruk van deze bijzondere woning.
De woning is ideaal gelegen, op loopafstand van de Vrije Universiteit, de Zuidas, het VU Medisch Centrum, Station Zuid en het winkelcentrum Gelderlandplein. De omgeving wordt gekenmerkt door veel groen, met het Amsterdamse Bos, het Amstelpark en een rustige binnentuin binnen handbereik. Ook voor gezinnen is dit een bijzonder aantrekkelijke locatie: scholen, waaronder een internationale school, liggen op steenworp afstand. De bereikbaarheid is uitstekend dankzij de nabijheid van de Ring A10 en diverse vormen van openbaar vervoer, zoals tram, metro, bus en trein. In de directe omgeving bevinden zich supermarkten, cafés, restaurants en sportfaciliteiten, waardoor alle dagelijkse voorzieningen binnen enkele minuten te bereiken zijn.
De wijk biedt een unieke balans: doordeweeks heerst er levendigheid dankzij de nabijheid van de Zuidas, de Vrije Universiteit en het VU Medisch Centrum, terwijl in het weekend de rust terugkeert rond deze zakelijke en academische hotspots. Tegelijkertijd blijft het Gelderlandplein bruisen met een breed aanbod aan winkels, gezellige cafés, restaurants en buurtactiviteiten. Dankzij de combinatie van de centrale ligging, het wooncomfort en de groene omgeving biedt Valkhof 112 een zeldzaam aangename woonplek in Amsterdam.
Indeling:
Centrale entree met afgesloten toegang, intercominstallatie, brievenbussen en toegang tot het trappenhuis en de bergingen in de onderbouw.
3e verdieping:
Entree/hal met toegang tot alle vertrekken. De ruime en lichte doorzonwoonkamer is gelegen aan de achterzijde van het appartement en biedt dankzij de ramen aan beide zijden veel lichtinval, evenals toegang tot het zonnige balkon.
Aan de voorzijde bevindt zich de gesloten keuken met gaskookplaat, afzuigkap en veel bergruimte, inclusief toegang tot het tweede balkon. Vanuit de hal bereik je twee goed bemeten slaapkamers. De badkamer is voorzien van een douche, wastafel en wasmachine-/drogeraansluiting.
Het toilet is separaat en in de hal bevindt zich tevens een praktische bergkast.
Bijzonderheden:
– Erfpacht is eeuwigdurend afgekocht;
– Energielabel D;
– VvE wordt professioneel beheerd door de Alliantie;
– Maandelijkse servicekosten: € 235,-;
– Twee parkeervergunningen mogelijk zonder wachttijd, zeldzaam in Amsterdam!
– Asbest- en ouderdomsclausule zijn van toepassing;
– Oplevering: in overleg (gemeubileerd mogelijk);
Een rondleiding door dit fijne appartement?
Neem contact met ons op, wij laten Valkhof 112 graag van binnen zien!
Kenmerken
Woning Algemeen
- Objecttype
- Appartement
- Huidig gebruik
- Woonruimte
- Huidige bestemming
- Woonruimte
- Permanente bewoning
- Ja
- Recreatiewoning
- Nee
- Liggingen
- Aan rustige weg, In woonwijk
- Inhoud
- 224 m3
- Woonoppervlakte
- 67 m2
- Gebruiksoppervlakte overige functies
- 0 m2
- Oppervlakte externe bergruimte
- 7 m2
- Buitenruimtes gebouwgebonden of vrijstaand
- 8 m2
- Bouwjaar
- 1963
- In aanbouw
- Nee
- Parkeer faciliteiten
- Betaald parkeren, Parkeervergunningen
- Parkeren toelichting
- 2 parkeervergunningen mogelijk
- Aantal kamers
- 3
- Aantal slaapkamers
- 2
- Aantal badkamers
- 1
- Soort
- Portiekflat
- Kenmerk
- Appartement
- Open portiek
- Nee
- Woonlaag
- 3
- Aantal woonlagen
- 1
Overdracht
- Koopprijs
- € 450.000,- k.k.
- Bouwvorm
- Bestaande bouw
- Aanmeldingsreden
- In verkoop genomen
- Aanvaarding
- In overleg
- Status
- Verkocht
Woning onderhoud, schuur
- Isolatievormen
- Dubbelglas
- Dak type
- Plat dak
- Dak materialen
- Bitumineuze Dakbedekking
- Energieklasse
- D
- Energielabel einddatum
- 14 augustus 2035
- Waardering
- Goed
- Waardering
- Goed
- Voorzieningen
- Voorzien van elektra
- Totaal aantal
- 1
- Soorten verwarming
- CV ketel
- CV ketel type
- Intergas Kompakt HL
- CV ketel bouwjaar
- 2004
- CV ketel brandstof
- Gas
- CV ketel eigendom
- Eigendom
- CV ketel combiketel
- Ja
- Soorten warm water
- CV ketel
- Bouwjaar
- 1963
- In aanbouw
- Nee
Woning Tuin, garage
- Tuintypen
- Geen tuin
- Achterom
- Nee
- Soorten
- Geen garage
- Parkeer faciliteiten
- Betaald parkeren, Parkeervergunningen
- Parkeren toelichting
- 2 parkeervergunningen mogelijk
Bekijk de
Ligging
Deze vind je vast leuk
Vergelijkaar aanbod
-
BeschikbaarAmsterdam - Saenredamstraat 6-1€ 395.000,- k.k.Bekijk woning
-
BeschikbaarAmsterdam - Van Nijenrodeweg 14€ 335.000,- k.k.Bekijk woning
-
VerkochtAmsterdam - Arent Janszoon Ernststraat 777€ 375.000,- k.k.Bekijk woning
-
VerkochtAmsterdam - Heringa-State 36€ 379.000,- k.k.Bekijk woning






