Sluisvaart 129 Ouderkerk aan de Amstel
- Koopprijs
- € 625.000,- k.k.
- Status
- Onder bod
- Bouwvorm
- Bestaande bouw
- Bouwjaar
- 1976
- Woonoppervlakte
- 107 m2
Lees hier een
Beschrijving
Op zoek naar een ruime en moderne woning met privé parkeerplaats? Wil je wonen in een groene, kindvriendelijke omgeving met volop privacy en comfort? Hecht je waarde aan duurzaamheid, licht en een hoogwaardige afwerking?
Dan is Sluisvaart 129 precies wat je zoekt!
Kenmerken van Sluisvaart 129:
– Moderne en goed onderhouden woning;
– Ruime voor- en achtertuin met royale berging;
– 4e ruime (slaap-) kamer;
– Moderne half open inbouwkeuken en badkamer;
– Dubbele beglazing;
– Privé parkeerplaats direct voor de deur;
– Gelegen in een rustige, groene en kindvriendelijke buurt.
Is Sluisvaart 129 echt wat voor je?
In combinatie met de foto’s geven we je hieronder alvast een beknopte indruk van deze woning.
Sluisvaart 129 ligt in een geliefde, rustige woonwijk in Ouderkerk aan de Amstel. Hier combineer je het dorpse karakter en de rust van een groene omgeving met de nabijheid van de stad. Op loop- en fietsafstand vind je basisscholen, winkels, sportverenigingen en gezellige horeca. Het charmante dorpscentrum biedt restaurants, cafés en lokale speciaalzaken. De Amstel, de Ouderkerkerplas en de Ronde Hoep liggen vlakbij en daarom ideaal voor wandelen, fietsen of varen. Voor gezinnen is de Ouderkerkerplas met strandje en horeca een heerlijke plek om te ontspannen.
De bereikbaarheid is uitstekend: via de A2 en A9 ben je snel in Amsterdam, Amstelveen of Schiphol. Ook met het openbaar vervoer zijn deze bestemmingen goed bereikbaar. Binnen tien minuten fietsen sta je al bij de Johan Cruijff Arena of het Ziggo Dome voor een concert of wedstrijd. Goed onderhouden en voorzien van moderne inbouwkeuken en badkamer, verwarming middels cv.-ketel, dubbele beglazing etc. Kortom een fraaie afgewerkte woning die je zeker gezien moet hebben!
Indeling:
Begane grond:
Via de verzorgde voortuin bereik je de entree van de woning. De hal met separaat toilet met fontein en meterkast. Ruime en sfeervolle woonkamer met trapkast. Aan de voorzijde vind je de moderne open inbouwkeuken voorzien van alle gemakken te weten: combimagnetron, vaatwasser, koel-vriescombinatie, gaskookplaat en rvs-schouwkap.
De tuin is ruim en fraai aangelegd, met meerdere zitplekken waar je heerlijk kunt genieten van de zon of juist de schaduw. Achter in de tuin bevindt zich een grote, praktische berging ideaal voor fietsen, tuinspullen of als extra opslagruimte. De woning beschikt daarnaast over een ruime voortuin met privé parkeerplaats.
1e verdieping:
De trap leidt naar de royale overloop met toegang tot 3 ruime (slaap-) kamers. Elke kamer heeft een prettige lichtinval en biedt voldoende ruimte. Moderne badkamer met ruime inloopdouche, toilet, designradiator en stijlvol wastafelmeubel. De verdieping is voorzien van een laminaatvloer.
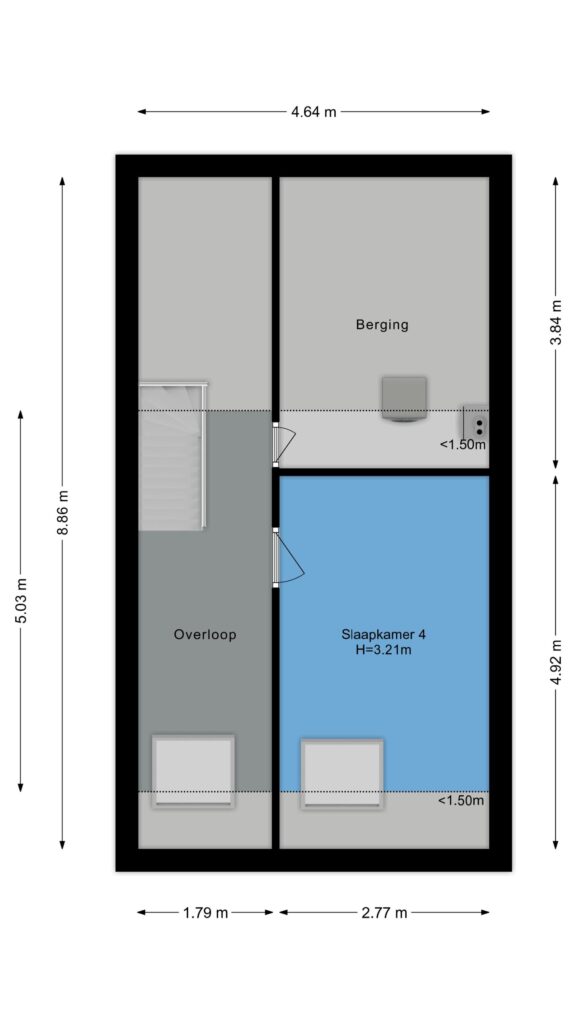
2e verdieping:
Via een vaste trap bereik je de zolderverdieping, een verrassend ruime voorzolder. Lichte en royale 4e (slaap-) kamer, ideaal voor wie regelmatig thuiswerkt of een rustige plek zoekt voor studie of hobby. Dankzij het dakraam is er volop natuurlijk licht, wat de ruimte prettig en functioneel maakt. Daarnaast biedt deze kamer ook de mogelijkheid als extra slaapkamer, hobbykamer of speelzolder. Separate bergkamer met wasmachineaansluiting en opstelplaats voor CV.-ketel.
De vele bergruimte onder de schuine kanten zorgt ervoor dat alles netjes kan worden opgeborgen.
Bijzonderheden:
– Bouwjaar: 1976;
– Energielabel C;
– Asbest- en ouderdomsclausule zijn van toepassing;
– Oplevering in overleg.
Een rondleiding door dit fraaie woonhuis?
Neem contact met ons op, wij laten je deze woning graag van binnen zien!
Kenmerken
Woning Algemeen
- Objecttype
- Woonhuis
- Huidig gebruik
- Woonruimte
- Huidige bestemming
- Woonruimte
- Bouwrijp
- Nee
- Permanente bewoning
- Ja
- Recreatiewoning
- Nee
- Liggingen
- Aan rustige weg, In woonwijk
- Inhoud
- 380 m3
- Woonoppervlakte
- 107 m2
- Gebruiksoppervlakte overige functies
- 0 m2
- Oppervlakte externe bergruimte
- 8 m2
- Buitenruimtes gebouwgebonden of vrijstaand
- 0 m2
- Perceel oppervlakte
- 155 m2
- Bouwjaar
- 1976
- In aanbouw
- Nee
- Parkeer faciliteiten
- Openbaar parkeren, Op eigen terrein
- Aantal kamers
- 6
- Aantal slaapkamers
- 4
- Aantal badkamers
- 1
Overdracht
- Koopprijs
- € 625.000,- k.k.
- Bouwvorm
- Bestaande bouw
- Aanmeldingsreden
- In verkoop genomen
- Aanvaarding
- In overleg
- Status
- Onder bod
Woning onderhoud, schuur
- Isolatievormen
- Vloerisolatie, Dubbelglas
- Dak type
- Zadeldak
- Dak materialen
- Pannen
- Energieklasse
- C
- Energielabel einddatum
- 12 juli 2034
- Waardering
- Goed
- Waardering
- Goed
- Soort
- Vrijstaand steen
- Voorzieningen
- Voorzien van elektra
- Soorten verwarming
- CV ketel
- CV ketel type
- Breman
- CV ketel bouwjaar
- 2013
- CV ketel brandstof
- Gas
- CV ketel eigendom
- Eigendom
- CV ketel combiketel
- Ja
- Soorten warm water
- CV ketel
- Perceel oppervlakte
- 155 m2
- Bouwjaar
- 1976
- In aanbouw
- Nee
Woning Tuin, garage
- Tuintypen
- Achtertuin, Voortuin
- Kwaliteit
- Fraai aangelegd
- Type
- Achtertuin
- Positie
- Oost
- Achterom
- Ja
- Lengte
- 1.150 m
- Breedte
- 500 m
- Oppervlakte
- 58 m2
- Soorten
- Geen garage
- Parkeer faciliteiten
- Openbaar parkeren, Op eigen terrein










