Noorderhoofdstraat 67b Krommenie
- Koopprijs
- € 495.000,- k.k.
- Status
- Verkocht
- Bouwvorm
- Bestaande bouw
- Bouwjaar
- 1920
- Woonoppervlakte
- 138 m2
Lees hier een
Beschrijving
Welkom in een buurt waarin historie, rust en alle voorzieningen hand in hand gaan. Gelegen aan de karakteristieke Noorderhoofdstraat 67B, ervaar je hier wonen zoals het bedoeld is: gemoedelijk, licht, en met alles wat je nodig hebt binnen bereik.
Echte kenmerken van 67B:
– Maisonnette, bovenste verdieping opgeleverd in 2020;
– 5 slaapkamers, 2 badkamers;
– Kunststof kozijnen;
– Parkeergelegenheid op terrein van de VVE (1 auto);
– Volledig geïsoleerd, HR++, energielabel A;
– Groot zonnig dakterras met veel privacy;
– Uitstekende ligging t.o.v. het centrum van Krommenie.
Is De Noorderhoofdstraat 67B echt wat voor je?
Met de foto’s, video, 360-beelden, matterport en plattegrond geven we je alvast een eerste indruk van dit fijne appartement.
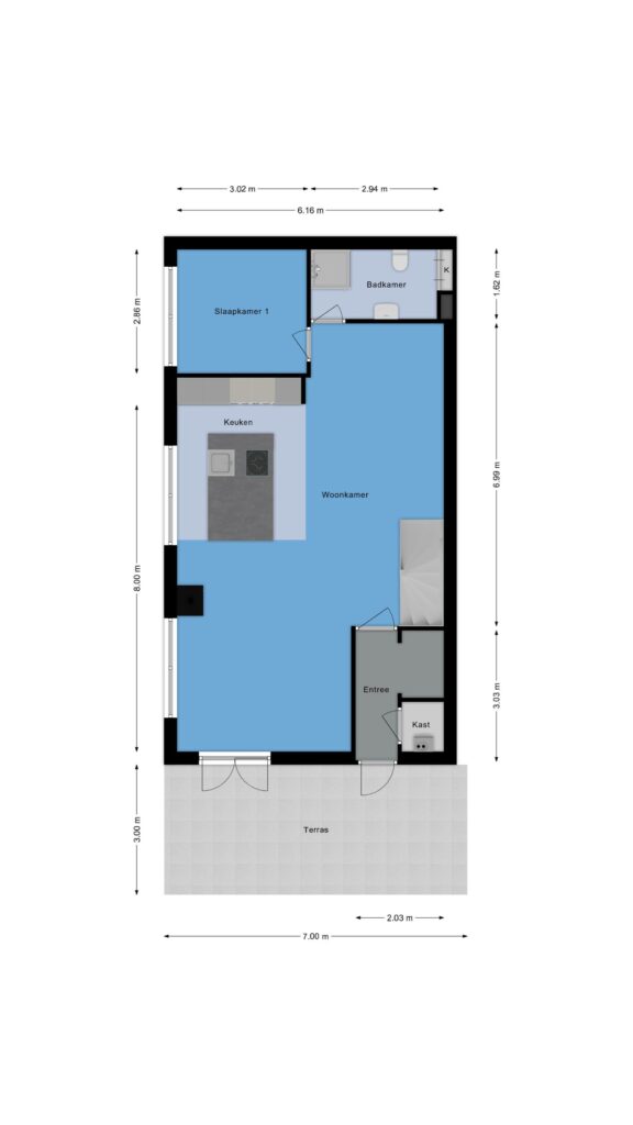
Via een grote poort bereik je de gezamenlijke betegelde voortuin met plek voor de postbussen én ruimte om je fiets te stallen. Middels een trap aan de zijkant van het gebouw komen we op de eerste etage, de toegang naar de maisonnette. Een gezamenlijk terras voor de deur geeft ons de mogelijkheid om ook hier buiten in het zonnetje te zitten. We komen binnen in de entree, waar we onze jas ophangen en waar een kast is voor de cv-installatie. Vervolgens gaan we de zeer ruime woonkamer in. Er is een woonkeuken met kook- en spoeleiland en een eethoek waar lekker lang getafeld kan worden met vrienden en familie. De open keuken is voorzien van inbouwapparatuur; twee combimagnetrons, een vaatwasser, inductiekookplaat, spoelbak, koelkast, vriezer en een afzuigkap. Er is een gezellige pellet kachel waar we tijdens de herfstachtige dagen kunnen zitten, maar ook de zithoek geeft een gezellige indruk. Via de zithoek kun je ook het dakterras op. We vinden de eerste badkamer achterin de woning welke voorzien is van een douche, toilet en wastafel. Er is een aparte slaapkamer op deze verdieping, welke nu dienst doet als studeerkamer/kantoor aan huis.
Via een trap in de woonkamer gaan we naar de tweede verdieping, deze verdieping is toegevoegd aan de woning in 2020. Middels de overloop kunnen we alle slaapkamers bereiken en zelfs een tweede badkamer. De badkamer is voorzien van een ligbad, toilet, inloopdouche en dubbele wastafel met meubel. Er zijn maar liefst 4 slaapkamers op deze etage en zijn allen ruim van formaat. De grootste slaapkamer heeft een inloopkast en toegang tot het zeer riante dakterras. Er zijn prachtige kozijnen met HR beglazing en hoge plafonds welke deze kamer echt de wow-factor geven. Er is zonwering voor de warme dagen. Het dakterras is op het westen gelegen maar biedt door de grote oppervlakte de hele dag zon. Het dakterras is vrij in te richten en biedt prachtig uitzicht over het water.
Omgeving:
De Noorderhoofdstraat is het hart van Krommenie. Op loopafstand van de woning bevindt zich o.a. de supermarkt, een Kruidvat en een Hema. Daarnaast is er een kroeg, fietsenmaker, bakker en slager en tal van leuke horeca gelegenheden. Alles wat je nodig hebt! De straat heeft veel charme en staat bekend om zijn historie met tal van monumenten en historische panden. Ook voor de natuurliefhebbers is er genoeg te beleven en kan je heerlijk wandelen, fietsen of varen. De woning ligt op steenworp afstand van het Agathepark.
Bijzonderheden:
– 138,1 m2 woonoppervlakte;
– Bruto inhoud woning 520 m3;
– Bouwjaar 1920, bovenste verdieping geplaatst in 2020;
– Servicekosten € 221,- per maand incl. water;
– Aanvaarding in overleg, kan spoedig.
Benieuwd hoe dit appartement voelt? Neem gerust contact met ons op voor een bezichtiging – wij laten het je graag zien!
—————
Welcome to a neighbourhood where history, tranquillity and all amenities go hand in hand. Located at the characteristic Noorderhoofdstraat 67B, here you can experience living as it was meant to be: pleasant, light, and with everything you need within reach.
Key features of 67B:
– Maisonette, top floor completed in 2020;
– 5 bedrooms, 2 bathrooms;
– Plastic window frames;
– Parking space on the grounds of the owners’ association (1 car);
– Fully insulated, HR++, energy label A;
– Large sunny roof terrace with lots of privacy;
– Excellent location relative to the centre of Krommenie.
Is Noorderhoofdstraat 67B really for you?
The photos, video, 360 images, Matterport and floor plan give you a first impression of this lovely flat.
A large gate leads to the communal tiled front garden with space for letterboxes and bicycle storage. A staircase on the side of the building leads to the first floor, which is the entrance to the maisonette. A communal terrace in front of the door allows us to sit outside in the sun.
We enter the hallway, where we hang up our coats and where there is a cupboard for the central heating system. We then enter the very spacious living room. There is a kitchen with a cooking and washing-up island and a dining area where you can enjoy long meals with friends and family. The open kitchen is equipped with built-in appliances: two combination microwaves, a dishwasher, induction hob, sink, refrigerator, freezer and extractor hood. There is a cosy pellet stove where we can sit during the autumn days, but the sitting area also gives a cosy impression. You can also access the roof terrace from the sitting area. We find the first bathroom at the back of the house, which is equipped with a shower, toilet and washbasin. There is a separate bedroom on this floor, which now serves as a study/home office.
A staircase in the living room leads to the second floor, which was added to the house in 2020. The landing provides access to all the bedrooms and even a second bathroom. The bathroom has a bath, toilet, walk-in shower and double washbasin with vanity unit. There are no fewer than four bedrooms on this floor, all of which are spacious. The largest bedroom has a walk-in wardrobe and access to the very spacious roof terrace. There are beautiful window frames with HR glazing and high ceilings, which really give this room the wow factor. There are sun blinds for the hot days. The roof terrace faces west but offers sun all day long due to its large surface area. The roof terrace can be furnished as you wish and offers a beautiful view over the water.
Surroundings:
Noorderhoofdstraat is the heart of Krommenie. Within walking distance of the property, you will find a supermarket, a Kruidvat and a Hema. There is also a pub, a bicycle repair shop, a baker and a butcher, as well as numerous nice restaurants and cafés. Everything you need! The street has a lot of charm and is known for its history with numerous monuments and historic buildings. There is also plenty to do for nature lovers, who can enjoy walking, cycling or boating. The property is a stone’s throw from Agathepark.
Details:
– 138.1 m² of living space;
– Gross volume of the property 520 m3;
– Built in 1920, top floor added in 2020;
– Service charges €221 per month incl. water;
– Acceptance in consultation, can be done soon.
Curious to see what this flat feels like? Feel free to contact us for a viewing – we would love to show it to you!
Kenmerken
Woning Algemeen
- Objecttype
- Appartement
- Huidig gebruik
- Woonruimte
- Huidige bestemming
- Woonruimte
- Permanente bewoning
- Ja
- Recreatiewoning
- Nee
- Liggingen
- In centrum, In woonwijk
- Inhoud
- 520 m3
- Woonoppervlakte
- 138 m2
- Gebruiksoppervlakte overige functies
- 0 m2
- Oppervlakte externe bergruimte
- 0 m2
- Buitenruimtes gebouwgebonden of vrijstaand
- 63 m2
- Bouwjaar
- 1920
- In aanbouw
- Nee
- Parkeer faciliteiten
- Openbaar parkeren
- Parkeren toelichting
- Parkeergelegenheid op terrein van de VVE
- Parkeren capaciteit
- 1
- Aantal kamers
- 7
- Aantal slaapkamers
- 5
- Aantal badkamers
- 2
- Soort
- Maisonnette
- Kenmerk
- Appartement
- Open portiek
- Nee
- Woonlaag
- 1
- Aantal woonlagen
- 2
Overdracht
- Koopprijs
- € 495.000,- k.k.
- Bouwvorm
- Bestaande bouw
- Aanmeldingsreden
- In verkoop genomen
- Aanvaarding
- In overleg
- Status
- Verkocht
Woning onderhoud, schuur
- Isolatievormen
- Volledig geïsoleerd, HR glas
- Dak type
- Samengesteld dak
- Dak materialen
- Pannen, Bitumineuze Dakbedekking
- Energieklasse
- A
- Energielabel einddatum
- 18 augustus 2035
- Waardering
- Goed
- Waardering
- Goed
- Soorten verwarming
- CV ketel, Pelletkachel
- CV ketel type
- Intergas HRE 36/30 CW5
- CV ketel bouwjaar
- 2020
- CV ketel brandstof
- Gas
- CV ketel eigendom
- Eigendom
- CV ketel combiketel
- Ja
- Soorten warm water
- CV ketel
- Bouwjaar
- 1920
- In aanbouw
- Nee
Woning Tuin, garage
- Tuintypen
- Geen tuin
- Achterom
- Nee
- Soorten
- Geen garage
- Parkeer faciliteiten
- Openbaar parkeren
- Parkeren toelichting
- Parkeergelegenheid op terrein van de VVE
- Parkeren capaciteit
- 1






