Buitenveldertselaan 47 Amsterdam
- Koopprijs
- € 525.000,- k.k.
- Status
- Verkocht
- Bouwvorm
- Bestaande bouw
- Bouwjaar
- 1963
- Woonoppervlakte
- 78 m2
Lees hier een
Beschrijving
Ben je op zoek naar een luxe afgewerkt appartement in een rustige wijk, maar toch op een centrale locatie in Amsterdam? Wil je wonen op een hoek, met veel licht, privacy én uitzicht op groen? Zoek je een instapklare woning met twee ruime slaapkamers? Dan is Buitenveldertselaan 47 precies wat je zoekt!
Kenmerken van Buitenveldertselaan 47:
– Instapklaar 4-kamer hoekappartement op de 1e verdieping (met lift);
– Luxe afwerking met o.a. elektrische haard, stalen deuren en marmerlook badkamer;
– Moderne keuken met inbouwapparatuur van het merk AEG met Quooker;
– Breed balkon op het oosten met vrij uitzicht en opbergkast;
– Separate berging in de onderbouw;
– Rustige ligging aan de rand van Amsterdam-Buitenveldert;
Is Buitenveldertselaan 47 echt wat voor jou?
In combinatie met de foto’s geven we je hieronder alvast een beknopte indruk van het appartement.
Prachtig licht hoekappartement gelegen in de groene en rustige wijk Buitenveldert, aan de zuidrand van Amsterdam. Hier woon je vlak bij de Zuidas, station Zuid/WTC en het luxe winkelcentrum Groot Gelderlandplein. Voor je dagelijkse boodschappen zijn er winkels aan de Van Boshuizenstraat op loopafstand, en ook het Stadshart van Amstelveen is vlot bereikbaar. De openbaar vervoerverbindingen zijn uitstekend: recht tegenover het complex ligt halte AJ Ernststraat (Amstelveenlijn), en diverse tram- en buslijnen brengen je snel naar het centrum of Schiphol. Met de auto ben je in enkele minuten op de Ring A10 met aansluiting op de A2, A4 en A9. Voor ontspanning en natuur zijn onder andere het Amstelpark en het Amsterdamse Bos dichtbij, perfect voor een wandeling of sportieve activiteit. Goed onderhouden en voorzien van moderne inbouwkeuken, moderne badkamer, verwarming middels cv.-ketel, fraaie laminaatvloer en dubbele beglazing. Kortom een ideaal appartement waar je zo in kan!
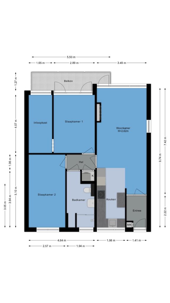
Indeling:
begane grond:
centrale entree/hal met afgesloten entree, intercom, lift, brievenbussen en toegang tot de berging.
1e verdieping:
entree, via de hal met stalen deur kom je in de lichte en sfeervolle woonkamer met hoekraam. Vanuit de woonkamer heb je toegang tot het brede balkon op het oosten met vrij uitzicht en een handige opbergkast. De moderne half open inbouwkeuken van het merk AEG is voorzien van luxe inbouwapparatuur te weten: Quooker, inductiekookplaat met geïntegreerd afzuigsysteem, koel-/vriescombinatie, vaatwasser, oven en combi-magnetron. De twee slaapkamers zijn royaal van formaat, waarbij de master bedroom beschikt over een eigen walk-in closet én toegang tot het balkon. 2e hal met toegang tot de 2 ruime slaapkamers waarvan 1 kamer beschikt over een eigen walk-in closet én toegang tot het balkon. De luxe badkamer is afgewerkt met marmerlook tegels en voorzien van een inloopdouche, hangend toilet, wastafelmeubel, designradiator en een raam voor daglicht en ventilatie.
Bijzonderheden:
– eeuwigdurende erfpacht is volledig afgekocht;
– professioneel beheerde VvE (VvE Beheer Amsterdam);
– maandelijkse VvE-bijdrage: € 277,37;
– energielabel D;
– asbest- en ouderdomsclausule zijn van toepassing;
– oplevering: in overleg;
Een rondleiding door dit luxe appartement?
Neem gerust contact met ons op, we laten je Buitenveldertselaan 47 graag van binnen zien!
Kenmerken
Woning Algemeen
- Objecttype
- Appartement
- Huidig gebruik
- Woonruimte
- Huidige bestemming
- Woonruimte
- Permanente bewoning
- Ja
- Recreatiewoning
- Nee
- Liggingen
- In woonwijk, Vrij uitzicht
- Inhoud
- 258 m3
- Woonoppervlakte
- 78 m2
- Gebruiksoppervlakte overige functies
- 0 m2
- Oppervlakte externe bergruimte
- 6 m2
- Buitenruimtes gebouwgebonden of vrijstaand
- 6 m2
- Bouwjaar
- 1963
- In aanbouw
- Nee
- Parkeer faciliteiten
- Betaald parkeren, Parkeervergunningen
- Aantal kamers
- 4
- Aantal slaapkamers
- 3
- Aantal badkamers
- 1
- Soort
- Galerijflat
- Kenmerk
- Appartement
- Open portiek
- Nee
- Woonlaag
- 1
- Aantal woonlagen
- 1
Overdracht
- Koopprijs
- € 525.000,- k.k.
- Bouwvorm
- Bestaande bouw
- Aanmeldingsreden
- In verkoop genomen
- Aanvaarding
- In overleg
- Status
- Verkocht
Woning onderhoud, schuur
- Isolatievormen
- Dubbelglas
- Dak type
- Plat dak
- Dak materialen
- Bitumineuze Dakbedekking
- Energieklasse
- D
- Energielabel einddatum
- 3 oktober 2035
- Waardering
- Goed
- Waardering
- Goed
- Soort
- Box
- Voorzieningen
- Voorzien van elektra
- Soorten verwarming
- CV ketel
- CV ketel type
- Intergas
- CV ketel bouwjaar
- 2019
- CV ketel brandstof
- Gas
- CV ketel eigendom
- Eigendom
- CV ketel combiketel
- Ja
- Soorten warm water
- CV ketel
- Bouwjaar
- 1963
- In aanbouw
- Nee
Woning Tuin, garage
- Tuintypen
- Geen tuin
- Achterom
- Nee
- Soorten
- Geen garage
- Parkeer faciliteiten
- Betaald parkeren, Parkeervergunningen
Video
Bekijk de
Ligging
Deze vind je vast leuk
Vergelijkaar aanbod
-
BeschikbaarAmsterdam - Saenredamstraat 6-1€ 395.000,- k.k.Bekijk woning
-
BeschikbaarAmsterdam - Van Nijenrodeweg 14€ 335.000,- k.k.Bekijk woning
-
VerkochtAmsterdam - Arent Janszoon Ernststraat 777€ 375.000,- k.k.Bekijk woning
-
Onder bodAmsterdam - Haag en Veld 245A€ 450.000,- k.k.Bekijk woning






